トップページ > 製品情報 > リアマウントモジュール > RMWシリーズ
リアマウントモジュール RMW (NOW/SRVシリーズ対応オプション)
既設ラックの奥行き変更を容易に実現した拡張モジュール。既設ラックの機材変更によるワイヤリングスペースの確保やパッチパネル増設によるドアー内側のクリアランス確保等、従来ラック本体の変更を余儀なくされるシーンでも簡単に対応が可能です。
- ※ドアはオプション品となります。ただし、既設のドアやリアパネルは流用可能です。
RMWシリーズ ソリューション
違和感のないデザイン
NOWシリーズのメインフレームを採用している為、増設対象のラックと全く違和感のないデザインです。
高い機能と流用性
NOWシリーズとSRVシリーズのオプションを流用可能。背面番やドアー、内部に取り付けるパワーラインなど、標準のままのオプションが流用可能です。
取付作業が容易です。
既設のラックに対し30分程度で取り付けが可能です。また連結部のジョイントやビス等が外部から一切見えません。
(安全上、作業は2名以上で実施お願い致します)
標準品ラックの機能拡張にも最適
前面に増設すればパッチパネル等の取り付けとドアーの両立。背面に取り付ければワイヤリングスペースの拡張や、PDUの増設等標準品のラックで満たせない機能を得る事ができます。
デッドスペースの少ない内部構造
天独自の連結方式によりデッドスペースを少なくし、ラックオプションの取り付けやワイヤリングルートを効率的に確保する事が可能です。
特注にも対応可能
主な構成部品が当社の標準ラックのパーツで構成されている為に奥行き寸法の調整や御希望の加工など幅広いアレンジに対応可能です。
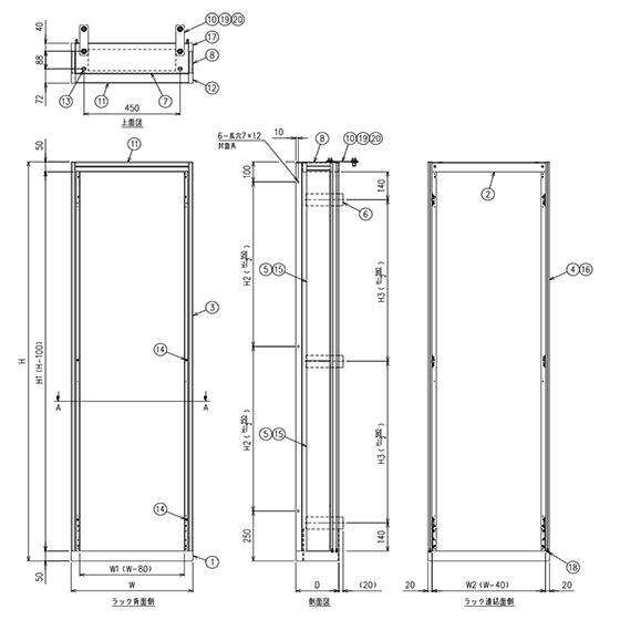
外観図
本体仕様
取付概要図
構成表
| 符番 | 部品名 | 数量 | 指定 |
|---|---|---|---|
| 1 | ベース | 1 | 0-EXNOW-101 |
| 2 | 天井枠 | 1 | 0-EXNOW-102 |
| 3 | 背面柱 | 各1 | 0-EXNOW-103 |
| 4 | 連結面柱 | 各1 | 0-EXNOW-104 |
| 5 | サイドパネル | 4 | 0-EXNOW-105 |
| 6 | ヨコハリ | 6 | 0-EXNOW-106 |
| 7 | トッププレート | 1 | 0-EXNOW-107 |
| 8 | 天井枠カバー(D) | 各1 | 0-EXNOW-108 |
| 9 | 連結金具 | 6 | 0-EXNOW-109 |
| 10 | 天井連結プレート | 2 | 0-EXNOW-110 |
| 11 | 天井枠カバー(前) | 1 | 00-NOW-102 |
| 12 | エンドカバー | 各1 | 00-NOW-118 |
| 13 | 化粧ボルト | 2 | 00-NOW-205B |
| 14 | ストッパー | 4 | 00-NOW-206A |
| 15 | 黄銅スペーサー(丸型)スリ割付 | 12 | BRB-305.5SE |
| 16 | 後入れバネナット(M5) | 56 | HNTP5-5 |
| 17 | フレームキャップ | 2 | HFC5-2040-S |
| 18 | 座金組込み六角穴付ボルト(M5×15) | 4 | SCBZ5-15 |
| 19 | SS アプセット3S M12×30 三価 | 4 | 天井連結プレート用 |
| 20 | SS M12用HM 三価 | 8 | 天井連結プレート用 |
ラインナップ
| 品番 | 外形寸法 | 適応ラック シリーズ |
||
|---|---|---|---|---|
| H | W | D | ||
| RMW20-57-150B/W | 1500(31U) | 570 | 200 | NOW SRV57 |
| RMW20-57-175B/W | 1750(36U) | |||
| RMW20-57-200B/W | 2000(42U) | |||
| RMW20-57-210B/W | 2100(45U) | |||
| RMW20-60-200B/W | 2000(42U) | 600 | SRV60 | |
| RMW20-60-210B/W | 2100(45U) | |||
| RMW20-60-220B/W | 2200(47U) | |||
| RMW20-70-200B/W | 2000(42U) | 700 | SRV70 | |
| RMW20-70-210B/W | 2100(45U) | |||
| RMW20-70-220B/W | 2200(47U) | |||
| RMW30-57-150B/W | 1500(31U) | 570 | 300 | NOW SRV57 |
| RMW30-57-175B/W | 1750(36U) | |||
| RMW30-57-200B/W | 2000(42U) | |||
| RMW30-57-210B/W | 2100(45U) | |||
| RMW30-60-200B/W | 2000(42U) | 600 | SRV60 | |
| RMW30-60-210B/W | 2100(45U) | |||
| RMW30-60-220B/W | 2200(47U) | |||
| RMW30-70-200B/W | 2000(42U) | 700 | SRV70 | |
| RMW30-70-210B/W | 2100(45U) | |||
| RMW30-70-220B/W | 2200(47U) | |||