トップページ > 製品情報 > ICTサーバーラック AIRシリーズ W700/W600
ICTサーバーラック AIRシリーズ W700/W600
GPUサーバー搭載を想定したAIデータセンターに最適なサーバーラック
GPUサーバー搭載を想定したAIデータセンターに最適なサーバーラックとして提案いたします。ドアーは開口率84.3%ハニカムパンチングメタルを採用し高排熱性能を実現。180°開放が可能。連結時、隣接ラックに干渉しません。高強度かつ高いセキュリティを実現します。
AIRシリーズ ソリューション
IDCが求める高水準ドアー
・高排熱性能を実現。開口率84.3%ハニカムパンチングメタル採用。
・作業性の高いドア設計。180°開放。連結時、隣接ラックに干渉しません。
・高強度かつ高いセキュリティを確保。フレームに高強度パイプ構造を採用。パンチング面は曲率を設けデザイン性も確保。

ラック背面に水冷クーラーを拡張可能
AIRラックには標準仕様で水冷式クーラー「ADHxシリーズ」(別売り)を取り付け可能です。これによりGPUサーバーなどの高負荷な機器実装に対応します。

高密度実装に耐える高強度
搭載荷重試験(静荷重試験)
1.3t積載24時間放置異常なし
耐震試験(動荷重試験)
1t積載兵庫県南部地震
神戸波818Gal 異常なし

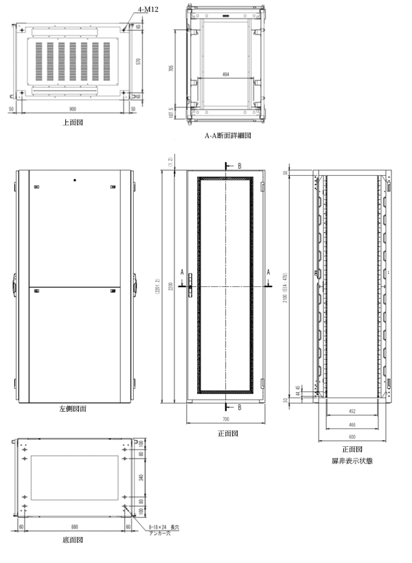
標準外観図 AIR 70-22-10
サイズバリエーション
W700仕様
| 品番 | 外形寸法 | 有効パネル数 | ||
|---|---|---|---|---|
| H | W | D | ||
| AIR70-20-10 | 2000 | 700 | 1000 | 42 |
| AIR70-20-11 | 1100 | |||
| AIR70-20-12 | 1200 | |||
| AIR70-21-10 | 2100 | 1000 | 45 | |
| AIR70-21-11 | 1100 | |||
| AIR70-21-12 | 1200 | |||
| AIR70-22-10 | 2200 | 1000 | 47 | |
| AIR70-22-11 | 1100 | |||
| AIR70-22-12 | 1200 | |||
W600仕様
| 品番 | 外形寸法 | 有効パネル数 | ||
|---|---|---|---|---|
| H | W | D | ||
| AIR60-20-10 | 2000 | 600 | 1000 | 42 |
| AIR60-20-11 | 1100 | |||
| AIR60-20-12 | 1200 | |||
| AIR60-21-10 | 2100 | 1000 | 45 | |
| AIR60-21-11 | 1100 | |||
| AIR60-21-12 | 1200 | |||
| AIR60-22-10 | 2200 | 1000 | 47 | |
| AIR60-22-11 | 1100 | |||
| AIR60-22-12 | 1200 | |||