NEOラック LAN仕様
優れた信頼性と効率的な作業性を備えたネットワーク構築に理想的なソリューションを実現した標準キャビネットラックです。幅が700mmと広く取られているため、十分な配線スペースを確保しています。その他仕様はスタンダードNEOラックと同等。D:950のご用意もございます。
- スタンダードカラー
- ホワイトアイボリー(2.5Y8/0.5)
- ブラックレザートン(N2)
- フレームカラー
- ステンカラーアルマイト(標準)
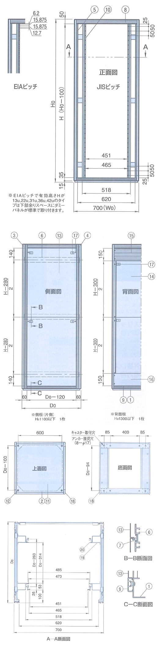
- 標準外観図

- 部品構成
-
符号 名称 個数 材質 色/処理 1 ベースフレーム 1 SECC t2.0 N3半ツヤ塗装 2 トップフレーム 1 3 メインフレーム 前 各1 A6063S-T5 アルマイトクリアー 4 メインフレーム 後 各1 5 サブフレーム 2 6 ヨコハリ 4・6 7 レシーブサッシ 0・2 8 上部化粧サッシ 各2 9 下部化粧サッシ 各2 10 FMアングル 2 11 トッププレート 1 エリオ鋼板 t1.2 ホワイトアイボリー 12 化粧ボルト 4 C3604 Ni 13 サイドプレート 2・4 エリオ鋼板 t1.2 ホワイトアイボリー 14 リアプレート 1・2 15 ルーバーパネル 1 A6063S-T5 アルマイトクリアー 16 コネクターパネル 1 17 ファスナーASSY 6~12 C3604他 Ni他 18 エンドキャップ 各4 ABS ステン色 19 MAブラケット 8・12 SPCC t2.9 Uc 20 Mアングル 2 A6063S-T5 アルマイトクリアー - *アルミ型材のアルマイト色は、符号3、4、5、8、9、10はステン色。符号6、7、15、16はアルミ色。
- *FMアングル、Mアングルはピッチ指定(JIS又はEIA)。
- 機種内容

下記より標準外観図のPDF・DXFデータがダウンロードできます。