トップページ > 製品情報 > SRV ICTラック > スタンダード仕様
SRV ICTラック スタンダード仕様
次世代IDC向けアルミサーバーラック。1枚ドアタイプ
- 耐震加重:600㎏
- 許容搭載荷重:1t.
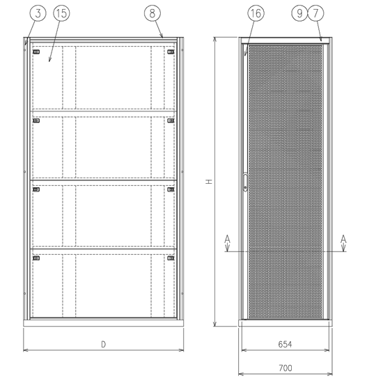
外観仕様図
| 型番 | 外形寸法 | ||
|---|---|---|---|
| H | H1(U) | D | |
| SRV70-20-09-D1 | 2000 | 936(21) | 900 |
| SRV70-20-10-D1 | 1000 | ||
| SRV70-20-11-D1 | 1100 | ||
| SRV70-20-12-D1 | 1200 | ||
| SRV70-21-09-D1 | 2100 | 986(22) | 900 |
| SRV70-21-10-D1 | 1000 | ||
| SRV70-21-11-D1 | 1100 | ||
| SRV70-21-12-D1 | 1200 | ||
| SRV70-22-09-D1 | 2200 | 1036(23) | 900 |
| SRV70-22-10-D1 | 1000 | ||
| SRV70-22-11-D1 | 1100 | ||
| SRV70-22-12-D1 | 1200 | ||
構成内容
| 符番 | 部品名称 | 数量 | 指定 |
|---|---|---|---|
| 1 | ベースASSY ※1 | 1 | Crフリー鋼板 t2.3、3.2 |
| 2 | 天井枠ASSY ※1 | 1 | Crフリー鋼板 t2.3、3.2 |
| 3 | メインフレーム ※2 | 各2 | アルミ型材A6063S |
| 4 | エンドカバー ※1 | 各2 | ABS樹脂 |
| 5 | ヨコハリ | 6 | アルミ型材A6063S |
| 6 | 下化粧サッシ ※2 | 2 | アルミ型材A6063S |
| 7 | 天井枠カバーサッシW ※2 | 2 | アルミ型材A6063S |
| 8 | 天井枠カバーサッシD ※2 | 2 | アルミ型材A6063S |
| 9 | ネームプレート | 2 | エリオ鋼板 t1.2 |
| 10 | サブフレーム ※1 | 各2 | 鋼板ZAM t2.3 |
| 11 | CMアングル | 各2 | 鋼板ZAM t2.3 |
| 12 | 膜付グロメット | 16 | EPDM (UL94 V-0) |
| 13 | 天井板 | 1 | エリオ鋼板 t1.2 |
| 14 | 化粧ボルト | 4 | C3604 |
| 15 | 側面板 | 8/4 | エリオ鋼板 t1.2 |
| 16 | ドアーASSY ※2 | 2 | アルミ型材A6063S鋼板 |
| 17 | ボトムプレート | 計3 | 鋼板ZAM t2.3 |
| 18 | 膜付グロメット | 4 | EPDM (UL94 V-0) |
| 19 | 接地端子 | 1 | M8×2 |
- 奥行きD1000以下の側面板は片側2枚構成になります。
- 奥行きD900のみ天井通線孔が3ヶ所、ボトムプレート左右角穴が6ヶ所になります。
- ※1印はマンセルN2.0半ツヤ塗装仕上げ
- ※2印のアルミ型材は黒色アルマイト仕上げ
- エリオ鋼板色は黒レザートン